島野の家はすべて設計士と
決める自由設計
島野工務店では、高断熱住宅を知り尽くした1級建築士が常駐する島野建築設計事務所の建築デザイナーが施主さまの設計を担当します。
シンプルモダン・南欧風・和風・洋風…お好みのデザインは十人十色。
「キッチンを重視したい」「ガレージを広めに」「子ども部屋はお子さんが増えたときにも対応できるようにしたい」などなど、ライフスタイルに応じたご要望も千差万別。島野工務店では、お客さまのご要望をプランニング、明確な未来予想図としてご提案しています。
ぜひ、豊富な経験を持つ建築デザイナーとお話ししながら、大切なあなただけのお家を皆さんご自身の考えで造っていきましょう。

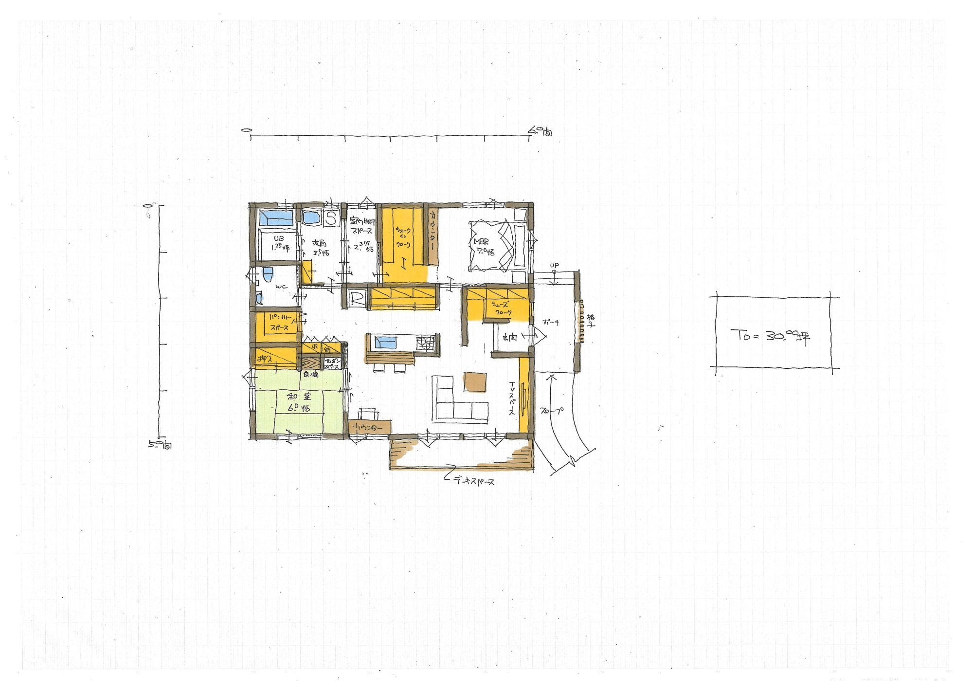
島野の自由設計例をご紹介
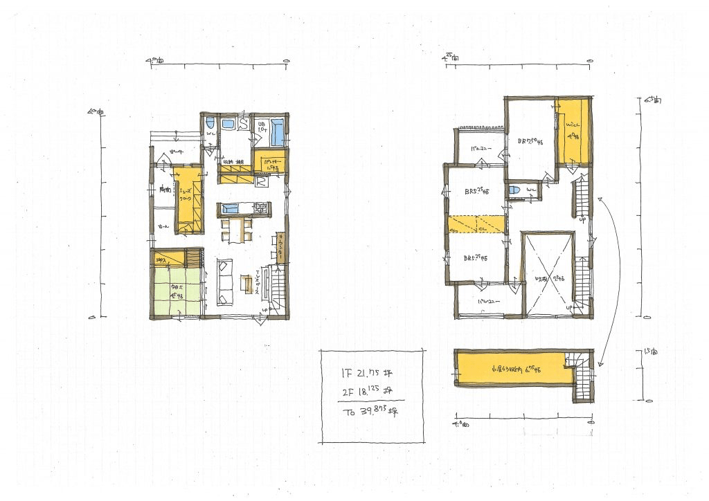
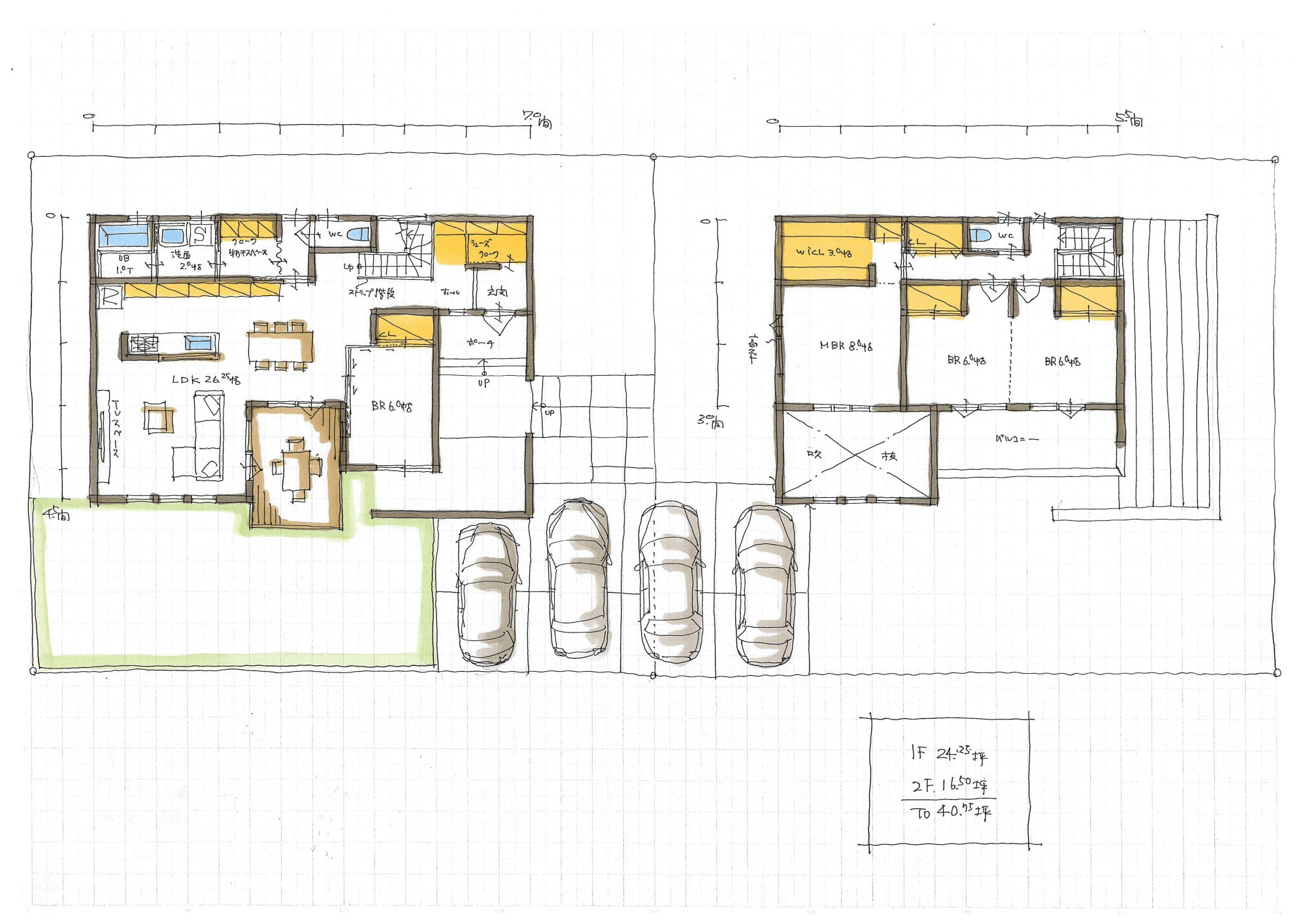
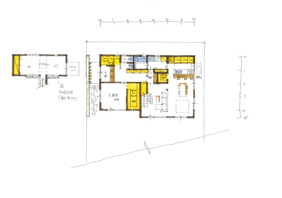
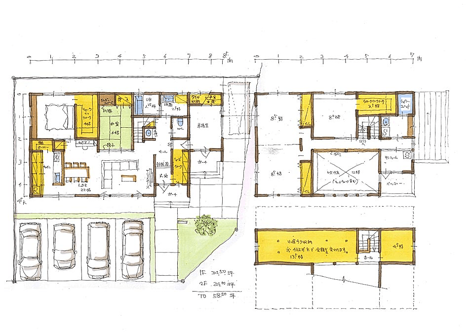
島野工務店では、建築デザイナーがお客さまのご要望をプランニング、明確な未来予想図をご提案しています。ここでは、その一部をご紹介いたします。
※画像をクリックいただくと大きな画面で表示されます。
01シンプルモダン住宅
シンプルモダン住宅01
外観

間取り図

シンプルモダン住宅02
外観

間取り図

02南欧風住宅
南欧風住宅01
外観

間取り図

03和風住宅
和風住宅01
外観

間取り図

04洋風住宅
洋風住宅01
外観

間取り図

05平屋住宅
平屋住宅01
外観

間取り図
